『30坪の家』は比較的小さな家だろう。
ただ夫婦+子供2人には大きすぎず小さすぎず、ちょうどいい家のサイズ。
細部にわたり程よい幅を持たせ、心地よい距離感を確保。
大きい家だけが快適とは言えない。
大きすぎる家は使用しない部屋・スペースが生まれがち。
家の端から端まで全てが欠かせないスペース。
今も10年後も30年後も全てのスペースを活用できる。
そんな理想の大きさを実現。
間取り変化
建築デザイナーと打ち合わせ、微調整を繰り返したした間取り図。
35→30坪と前回のプランより5坪の削減。
1箇所ごとの調整幅は少ないが、微調整を積み重ねる事で5坪まで削減できた。
それでは新旧間取り図をご覧頂きたい。
旧プラン
【1階】

【2階】

【延床面積】
1階:20.7坪
2階:15.0坪
合 計:35.7坪
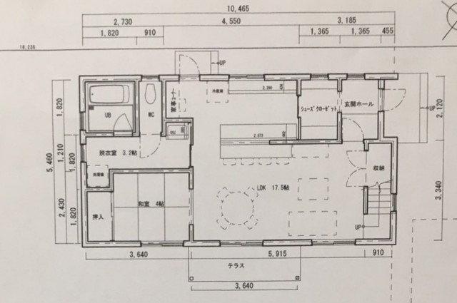
新プラン
【1階】

【2階】

【延床面積】
1階:17.5坪
2階:13.0坪
合計:30.5坪
各エリアを広めたり狭めたり。
パッと見ただけでも各部屋がギュっと詰まったのが分かる。
新旧の間取りでどのように変わったのか、なぜ変えたのか見ていこう。
旧プランのメリット・デメリットはコチラに詳しくまとめてある↓
間取り変更で生まれた4つのメリット・6つのデメリット
LDK(リビング・ダイニング・キッチン)を3.5畳狭める

旧プランでは家事室・廊下を抜いて21畳のLDK。
新プランでは同条件で17.5畳と3.5畳の削減。
無計画に狭めるのでなく、不要なスペースを見定め狭める。
またLDKだけで完結させず、隣接する家事スペース・和室との繋がりでより広く感じさせる。
何も置かず使用目的のないスペースはちょっとした作業や子供の遊び場として活用しやすい反面、掃除エリアが広がる・床に物を起きやすい・散らかりやすいなどのデメリットも兼ね備えている。
我が家ではLDKに扉のない和室を隣接させることで、子供を遊ばせたりアイロンなど動きやすい場を設けた。
くつろぐLDK・動きやすい和室
各エリアの役割を明確化することでLDKを大幅にカットする事に成功した。
和室を1畳UP

旧プランでは3畳だった和室を1畳広げ4畳にした。
子供が遊ぶ・家事をする際には3畳でも事足りるかもしれない。
しかし我が家では和室に『寝る』という役割を持たせたい。
子供達の昼寝・風邪で学校や幼稚園を休んだときの1階での居場所・老後の夫婦の寝室が主な寝る目的だ。
その為には大人用の布団を2枚敷きたい。

布団と部屋のサイズ
- シングル布団:100×200㎝
- セミダブル布団:140×200㎝
- 3畳和室:273×182㎝
- 4畳和室:273×243㎝
3畳和室ではシングル布団1枚しか敷くことができない。
しかし4畳和室にすることでシングル布団2枚(200×200㎝)を敷くことができる。
更にはシングル布団+セミダブル布団2枚(240×200㎝)を敷くこともできる。
シングル布団+セミダブル布団では部屋全てを使い隙間無く布団を敷くイメージだが、シングル布団×2枚ならば布団と布団の間に程よい距離を保つこともできる。
我が家はこのように、布団のサイズから逆算して和室の広さを決めた。
布団を敷いて寝るという役割を果たすには最低でも4畳必要。
そして4畳こそが我が家にとってベストな広さなのだ。
家事室から家事スペース

旧プランでは2畳あり個室としていた家事室。
これはマイホームを考え始めた頃からの妻の希望。
『家事室』と聞くとどうしても『部屋』としてのイメージが残ってしまうが、使用方法・欲しい理由を深く掘り下げ確認してみると無理に部屋とする必要性が無いことに気づいた。
家事室が欲しい理由
- 料理の合間に腰を掛ける
- 腰を掛けたとき雑誌やスマホをいじる・置いておく
- 来客時などLDKに居ながらも死角となるスペースが欲しい
- 何かホッと一息つける場所が欲しい
何か明確な理由が有るわけではない。
無意識のうちについつい行ってしまう。
2階でなく家族が集まるLDK付近に。
寝っ転がれる大きなソファーや日当たりの良い和室もいいかもしれない。
ただ誰にも邪魔をされない自分だけのスペース。
妻のそんな願いが詰め込まれた家事スペース。
壁で仕切らずに部屋からスペースとすることで、無理なくエリアを小さくできた。

また我が家ではキッチンのゴミ箱は小さくし、外に大きなゴミ置き場を設置し小まめに移す生活を考えている。
そのためキッチンに勝手口は必須であり、家事スペースとうまく組み合わせることができた。
2階は寝るための場所

家の強度・コスパを考えると総2階(1階と2階が同じ大きさ)が理想だ。
だが我が家ではあえて1階は大きく2階は小さくした。
1階は家族が集まりたくなる場、2階は寝るための部屋。
子供部屋が広く快適すぎては部屋にこもってしまう。
こもらせないためにも部屋を狭めて布団と勉強机が置けるだけのスペースにあえて狭めた。
リビング・ダイニング・和室に集まり皆が一緒。
ただそれでいい。
そのため1階は居心地が良いよう全てを詰め込むだけでなく、扉を増やしすぎず1階全体が1つの大きな空間となるよう心掛けた。
2階バルコニー増設

旧プランでは2階バルコニーは無く全部屋南面を向いていたことから、エアコンの室外機・ダクトを南面に落とさざるおえなかった。
ただ今回は各部屋に接するようバルコニーを設置したことにより、室外機・ダクトをさりげなく隠すことに成功。
また外観的にも凹凸をつけることでより良くなった。
1階テラス増設

こちらのテラスは私が家づくりの参考にしているブロガーmashleyさん宅の写真。
家の内と外を繋ぐテラスを上手く取り入れている。
機能的かつ快適。
他にもワクワクが止まらない仕掛けがいっぱい。
とても勉強になります↓
妻は生まれて今まで、1階で洗濯をして1階の庭・ベランダに干す生活をしてきた。
マイホームを建てたからと2階のバルコニーで干す考えはない。
1階で『洗濯→干す→たたむ』という流れを家事の合間にできる。
また家族がいる1階でお喋りやテレビを見ながら家事を完結させたいというのが、大きな理由の一つだ。
庭は広くとれるため何処にでも物干しを設置できるが雨をしのげる場所がない。
そこでテラスを増設し屋根をかけ安心して洗濯物を干せる環境をつくった。
タイルにしようかウッドデッキにしようかはまだ悩み中。
小さい家のメリット

広げたい和室は広げ、その他狭めたいところは狭める。
結果として延床面積が減り建築費用も抑えられる。
一番大きいのは家族との距離を縮められた点だろう。
また家が小さいということは、冷暖房費も抑えられるということ。
冷暖房費の負担が減ればその分、生活が楽になる。
小さい家にはメリットが多い。
もちろんデメリットもある

新プランとなり全てが良い方向にいった訳ではない。
デメリットも出てしまった。

まずは洗面脱衣所からでないとトイレに入れない点。
男の私としては風呂上がりに娘や妻が入ってきても全く気にしない。
しかし妻や数年後に年頃となった娘はどうだろう。
着替えている最中にパパがトイレに行くためにズカズカ入ってくる。
パパは死刑間違いなし。
ただ2階にもトイレを設けたため、洗面脱衣所の鍵がかかっていたら2階に行くだろう。
また中間値点にロールカーテンやパーテーションを設置し目隠しという考えもある。

また洗面脱衣所には室内干し&除湿器で雨の日を乗りきろうと考えている。
ただし幅が狭く長い脱衣所。
干した洗濯物が邪魔で洗面台やトイレに行くのに邪魔となりそう。
全員がお風呂から出たあと洗濯機を回し始める我が家。
お風呂場前の脱衣スペース1.8mだけで干すのが完了すれば問題ない。
しかしスペースが足らなくなりトイレや洗面台の前にまで干すことになると、通行の妨げとなる可能性もある。
急な来客時にもサッと隠せる室内干しスペースが欲しく洗面脱衣所を選んだが、この広さ・配置で大丈夫なのか不安になりつつある。
収納スペースは足りるのか問題

特にキッチン回りに不安が残る収納。
本当に足りるのだろうか。
我が家は色違いだが↑のカップボードを採用しよと考えている。
この写真は幅255㎝だが、この間取り図では225~240㎝までしか入らないと言われてしまった。
調理器具・食器・買い貯めの食料。
これらをカップボードとキッチン内の収納で足りるのか不安。
パントリーが必要か、もし付けるとしたらどこだろう。
今後の検討課題だ。
おわりに
長いブログとなってしまったが、ここまで読んでくださり心より感謝です。
いかがだっただろう?
冒頭の『30坪の家』を読んだ時と今では感覚が少し変たのではないだろうか?
LDKだけ見ると17.5畳と決して広くは無いが、4畳の和室を加えれば21.5畳と広く感じる。
更にはテラスと家の高さを揃えることでその広さの感覚は更に増すだろう。
そして2階の役割を明確にすることで家の大きさに関わらず快適性が生まれる。
間取り図と向き合い続けること1年。
少しずつ我が家のイメージが見えてきた気がする。
きっとこの間取り図も1ヶ月後にはガラリと変わっているのかもしれない。
ただ現時点ではこの間取りが一番しっくりきているのも事実。
まだまだゴールは見えてこないが、今を楽しみより良い家が建つよう精進していく。



