心も体も暖かい家づくり

おかげ様で「マイホーム計画」2年連続アクセス数1位を頂けました

でも!建ててほしい!これ以上の感情、今はでてきません。

f:id:to-ichi:20190607232421j:plain

希望予算から+500万円の提案を受けた我が家。
住宅ローン35年で毎月1.5万円多く払うのは厳しいです。

家族会議の末『希望予算に+200万円までならいける』と判断しました。
その旨を建築士さんに伝え、価格調整をしてもらいます。

希望予算+500万円の間取り、我が家の葛藤はこちら↓

希望予算+500万円で提案された28坪の間取り

建築士さんもいろいろと悩まれたそうですが、なんとか希望予算+200万円のプランでまとめて下さいました。
そして心置きなく契約を決意できた私たち夫婦。


建築士さん、ありがとう。


今回は契約前、最後の打ち合わせを紹介です。



2つの提案

我が家がパートナーとしてお願いした建築士さん、基本的に1つのプランに全力を注ぎ、我が家の性格を建築士のフィルターを通して家へと具現化させます。
ハウスメーカーなどでよく見られる
『A案、B案をご用意いたしました』
のように複数の間取りから施主が選択する方式ではありません。

複数パターンを用意するメリットとして、見比べることでより自分達の希望を明確化させることが挙げられます。
むしろ元々A案で提案したいが、その事に気づかせるためにあえてB案を当て馬のように提案する建築会社も少なくありません。

しかしこの建築士さんは、あえて1つのプランに絞って提案することで、施主に迷わせないという思いがあります。
打ち合わせのなかでも『考えるのは私の仕事。施主には悩ませてはいけない。だからこそ私たち建築士は安くない設計料をもらえるんです』といった思いを何度も耳にしました。

今までもそうです。
建築士さんが我が家の生活を家という形のなかで、いかに心地よく、幸せに、シンプルに暮らせるかを紡ぎ、1つのプランのみ提案されました。

ですが今回、そのスタイルを変え、2つのプランを提案。
1つが現行の28坪プランから無駄を省きコストカットしたもの。
そしてもう1つが、無駄を省きコストカットしつつ家の大きさ(坪数)も抑えたものです。

坪数を変えないプラン

まず提案されたのは坪数を変えない28坪プランです。
変更点は大きく7つ。

  1. サッシのグレードを下げる
  2. 電動干し竿を無くす
  3. 床下エアコンを無くす
  4. 造り付けソファを無くす
  5. 断熱を超ハイグレード→ハイグレード
  6. 造作収納を減らす
  7. 外構を削る

その他にも微調整を重ね、下げられた金額は200万円。
希望予算+300万円です。

我が家の要望では『希望予算+200万円まで』なので、100万円高い…。
100万円を住宅ローン月々換算で+3,000円です。

坪数を下げたプラン

続いて提案を受けたのは家を少し小さくしたプランです。
ベースの間取りは変わりません。
無駄を省き、より我が家に合った家を追求して下さいました。
小さくしただけでなく坪数を変えないプラン同様、7つの変更も加え更に価格を抑えます。

そして出てきた見積りが…

希望予算+200万円!

ついにきました\(^^)/
価格はオーケー!
あとは間取りです。

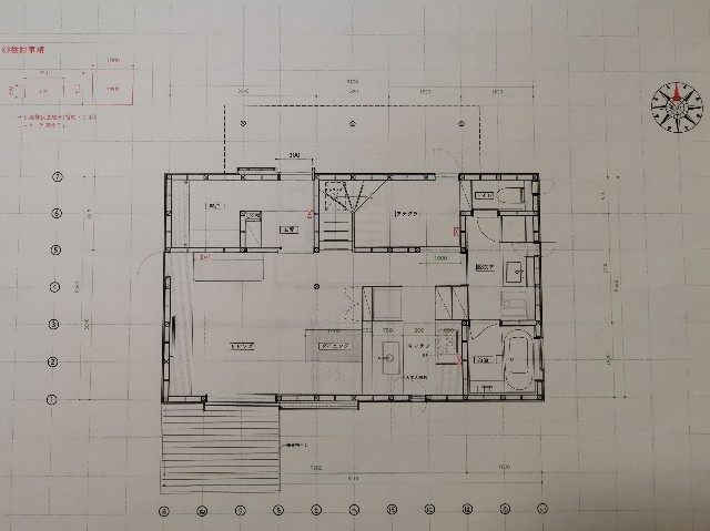
「現行の28坪から2~3坪削りました」

f:id:to-ichi:20190607215540j:plain
28坪間取り図1階

f:id:to-ichi:20190607215630j:plain
28坪間取り図2階

28坪から2~3坪削るということは、25坪台です。
ここまでは以前「予算を抑えるには家を小さくする可能性もあります」と言われていたので覚悟していました。

この言葉から夫婦で話し合い『家の贅肉はどこか』を模索した結果、アナグラ・バルコニーです。

アナグラは現時点で使用目的が確立されていない贅沢エリア。
バルコニーは布団を干すためだけのエリア。

このことは夫婦も建築士さんも理解しているため、家を小さくするならまずここに着手するだろうと予想します。

でもどうでしょう。
まさかまさかのアナグラは現状維持。
バルコニーは4畳→3畳と少し削っただけ。

その他の部分で2~3坪。
我が家の想定外エリアを小さくされ、正直驚きました。

贅肉を削ぎ落とす

「家には削っていいところ、悪いところがあります」

我が家ではバルコニー、アナグラがそれにあたるそう。
使用目的がなくても、居心地や家のプロポーションを考えると優先順位がとても高いようです。
これが家のバランスというところでしょうか。

施主の要望だけを反映させるのではなく、建築士のフィルターを通すことで具現化された家。
我が家の贅肉を丁寧に削ぎ落とし、ホントの幸せを追求した、建築士でないと表現できない家。

そんなプランを共に模索できた大切な時間でした。

答え

坪数の変わらない28坪の+300万円プラン。
坪数を抑えた25坪台で+200万円プラン。

2つの提案から選んだのは坪数を抑えた25坪台のプランです。

このプランは我が家の最小生活単位かもしれません。
そして贅肉を削ぎ落としきり、家を隅々まで使うことのできる最大生活単位でもあるように感じます。

今までいろんな建築会社から何度もプランを見積りと共に提案していただきましたが、ここまで納得できたものはありません。
家は建っていませんが、私たち夫婦は家づくりを始めて2年強、一番の幸せを感じています。

『25坪台の家なんて、そこまで切り詰める必要ある?』

なんて思われるでしょうが、そこまでしてこの建築士さんに建ててもらいたかったんです。

私のこのブログでは伝わりきらないことなんて重々承知しています。
でも!なんです。

でも!建ててほしい!

それ以上の感情、今はでてきません。

この感情を少しずつ言葉で表せるよう、これから心の整理をしていきます。

最後の難関

今まで濁すように『25坪台』とお伝えしてきました。
というのもまだ我が家のプランは確定していません。

なぜなら、建築士さんに希望予算+200万円までしか払えない事を電話で伝えた5日後に私たち夫婦が決心できたプランを提案してくれたため、隅々まで設計が行き届いていないのです。

一応、間取り図と概算見積りは用意してくれました。
しかし5日間では微調整が終わらず、まだ建築士さんの納得するクオリティにまでもっていけてないそう。
また設計途中ということもあり、明細見積りでなく大まかな概算見積りで希望予算+200万円の予定です。

ここからが建築士さんの正念場です。
6/22に工事請負契約書にサインします。
ここまでにプランを練り上げ、我が家に最後の提案をするのが腕の見せ所。

きっと今ごろねじりハチマキに鉛筆を耳に挟み、口はタコさんになっているでしょう(笑)


おわりに

25坪台プラン(仮)の公開はまた後日。
ただこのプラン、今は100点じゃなくても年を重ねるごとに可変的に我が家に寄り添ってくれる素敵な出来映えです(^^)
ただ何点か改善の余地が残されているため、建築士さんは頑張ります。

それにしてもかなり遠回りしたな(笑)
もちろん後悔なんてしてませんよ!
この遠回りのお陰で、夫婦が心から納得できた唯一の家に住めるんですもん\(^^)/

にほんブログ村 住まいブログへ