心も体も暖かい家づくり

おかげ様で「マイホーム計画」2年連続アクセス数1位を頂けました

25坪の間取り図を3Dでイメージし契約に備えます

f:id:to-ichi:20190619212703j:plain

25坪台の小さな小さなお家。
夫婦+5歳ガール&2歳ボーイの4人が暮らす超狭小住宅です。

当ブログではお馴染みになった3Dマイホームデザイナー12(パソコンソフト)を使用し、家の外観・内装をチェック(^^)
意匠派建築士さんが設計しただけあり完コピまではいきませんでしたが、極力近づける事はできたのかな。

それでは3D妄想でたっぷりイメージしていきましょう!



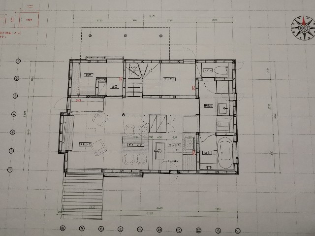
25坪プラン

1階間取り

f:id:to-ichi:20190617220529j:plain

2階間取り

f:id:to-ichi:20190617220546j:plain

配置図

f:id:to-ichi:20190617220617j:plain

立面図

f:id:to-ichi:20190617220644j:plain

これらのプランを3Dマイホームデザイナーに落とし込み、イメージを膨らませます。
間取り図だけでは部屋の広さは認識できても、空間の在り方や繋がりはイメージしにくいですもんね。

キッチン

f:id:to-ichi:20190617221409j:plain

キッチンはママの戦場。
いくら家を小さくしても、ここだけは削るわけにはいきません。

ただ一般的なシンク・作業スペース・コンロが横並びなキッチンでなくコンロは背面に移動し、空いたスペースに食器棚を持ってきます。

f:id:to-ichi:20190617221758j:plain


食器棚は名前の通り食器を仕舞うエリア。
奥行きがあると収納が困難に。
建築士さんからの提案で食器棚の奥行きを減らし、後ろ側はダイニングから収納できるスペースにしました。

コンロ脇の収納エリアは炊飯器や電子レンジのようなキッチン家電、そして食料品のストックを予定しています。

リビング・ダイニング

f:id:to-ichi:20190618104439j:plain

我が家のLDKは14畳。
リビングとダイニングでは9畳程。
一般的な感覚で言えば、とても小さなLDKですよね(笑)

キッチンは先ほど紹介した通り、特別狭める事はしていません。
しかしリビング・ダイニングに関しては別です。
必要最小限の広さしかとりませんが、広く感じる工夫を詰め込みました。

  1. ソファを置かない
  2. コーヒーテーブルを置かない
  3. ダイニングテーブルを壁に寄せる
  4. 大開口窓+ウッドデッキで内と外を繋げる
  5. チェストなどは置かない

これだけで9畳程のリビング・ダイニングを広く感じさせ、窮屈感を緩和させます。

f:id:to-ichi:20190618105146j:plain

リビング部分は6畳です。
ちょっと小ぶりなリビングですが、物を置かなく外と一体感を持たせるだけでここまで広く感じます。

テレビを見るときはダイニングチェアに座ってか、リビングにラグを敷いてゴロン。

f:id:to-ichi:20190618105422j:plain

テレビが置いてある箇所が少し窪んでいるのは、圧迫感を緩和させるため。
この面に窪みが無いとリビングが圧迫されるだけでなく、LDK全体が縮こまって感じてしまいます。

テレビ+テレビ台をこの空間に調和させるために必要な一工夫。
もちろん建築士さんのアイディアです。
建築素人の私たち夫婦には考えつかない、つくはずのない空間づくりですね。

アナグラ

f:id:to-ichi:20190618110200j:plain

キッチン脇であり、一部が階段下に位置するアナグラ。
漢字で書くと『穴蔵』ですかね。

その名の通り、穴から入り込む倉のような空間です。
こちらのイメージ図をご覧ください。

f:id:to-ichi:20190618110507j:plain

アナグラの入り口は見つけられましたか?

大人はもちろん、子供ですら屈まないと入り込めない秘密基地のような空間です(笑)

f:id:to-ichi:20190618110750j:plain

小下がりで天井も1900mm、3畳程の畳スペース。
使用目的が明確でないこのアナグラは予算の兼ね合いから家を小さくする際、真っ先に削ることになると夫婦で話していました。

それくらいこのアナグラには生活のイメージが曖昧な空間なんです(笑)

子供は好きそう!
大人も好きそう!
でも何に使うかイメージがつかない!

そんな空間ですぐ削られると予想しましたし夫婦の思いを伝えましたが、建築士さんは『こういう曖昧な場所が家にちょこっとあると、住んでいて心が豊かになるんですよ♪』と、あえてアナグラを残すよう勧めてくれました。

施主の要望を全て反映させるわけでなく、建築士のフィルターで我が家を覗いた時に必要な場所。
それが『アナグラ』だったのかもしれませんね。

ここは建築士さんを信用しましょう(^^)
きっと我が家の核となる空間なのかもしれません!
まだ全くイメージできていませんが(笑)

脱衣室

f:id:to-ichi:20190618111903j:plain

25坪台の小さな家でも脱衣室は3畳と、ちょっぴり広め。
室内干しを想定してです。

3Dマイホームデザイナーでは表現しきれませんでしたが、建築士さんがデザインした木製格子に洗面台が馴染む素敵な空間になる予定(^^)

2階フリースペース

f:id:to-ichi:20190618112317j:plain

緑・赤・黄のおもちゃ箱が置かれた7畳の部屋はフリースペース。
子供たちが小さいときはここをキッズスペースに、年頃になれば間仕切って個室に、独立後には間仕切りを外し再度このフリースペースに。

f:id:to-ichi:20190618112737j:plain

妄想上では滑り台やミニジャングルジムなんか置けたら良いな~♪
できれば手作りで(笑)

基本的に2階はお客さんを通さない!

なのでここは子供たちの自律神経をビンビン促すための空間にするため、散らかっててもある程度OK!
もちろんお片付けはさせますが、限られたおもちゃ収納量の中で取捨選択を自分達でして、溢れたおもちゃをどうするか考えさせたいな。

あえてちょっぴり散らからせて
『仕舞えないおもちゃはどうする?』
何でもかんでも物を溜め込まない、1つの物を大切に長く使う。
そんな子育てをこの家に手助けしてもらえたら幸いです(^^)

寝室

f:id:to-ichi:20190618113924j:plain

バルコニーとウォークインクローゼットの出入りができる唯一のお部屋です。
このお部屋は生活感たっぷりになる予定。
お布団を干したり洋服を収納したり。

まずは寝室にベッドは置かず川の字で家族4人、お互いを蹴飛ばしながら和気あいあい寝ます。
この4人川の字に必要な広さが6畳であり、今の仮住まいと同じスタンス。

外観

お庭の造園まではまだ打合せが進んでいませんので、あくまでも私の妄想の範囲でイメージを膨らませています。
駐車場の位置は確定ですが、樹木・花・丘・家庭菜園・アプローチなどは予算に合わせて練っていきます。

f:id:to-ichi:20190618114812j:plain

北面は我が家の顔です。
町にあいさつをするような、優しいアプローチを建築士さんが模索中。
まだ外構イメージ・屋根の形状は固まりません。
窓の位置がシンメトリー(左右対称)でなくなったことから、屋根の頂点位置を動かす可能性もあるとか。

f:id:to-ichi:20190618115310j:plain

こちらは北面の次に町の景観となる大切な面です。
2階の三連窓がトイレ増設により崩れてしまったのが残念なところ。
私の目線で言えば、トイレの窓を中央に配置すればいい気もするが…。
全体のバランスを考え建築士さんがどう判断するのか、次の打合せが楽しみです。

f:id:to-ichi:20190618115342j:plain

南面は窓の位置をいじらなかった、いじりたくなかった家族だけの特別な外観です。
今後エアコンの室外機や様々な景観を崩しかねないアイテムが置かれますが、ここには置かないと私も建築士さんも意思は固いです(笑)

西

f:id:to-ichi:20190618115400j:plain

西面は南面と同じく、ほぼ町の死角となります。
テレビとLDKの距離をとるため窪みを設けた反動が外壁の唯一の凹凸として現れますが、ここは町と家の調和よりも住み心地を優先させていただいた妥協点なのかな。
どうにも使い勝手の難しい庭の角地を、『丘』という子供にとったら無限の可能性を秘めている装置で心踊る空間にする予定です。

3Dマイホームデザイナー12

f:id:to-ichi:20190619204357j:plain

やはりマイホームデザイナーは我が家の家づくりには欠かせません。
間取り・室内空間・外観バランス・外構など、様々な観点から自分で確認できるのはありがたいですよね。
少し間取りをいじってすぐ3Dでイメージできるんですもん。

また日当たり確認機能は別格です!
これが無かったら我が家を敷地に対して斜めに配置する決断が出来なかったのではないかと感じるくらいです。
動画と画像で紹介してますので、気になる方はご覧ください。

マイホームデザイナーで確認!日当たりの悪い土地だと今さら気づく

また4万点あるパーツはどんな素材もマニアックな家具をも網羅しているのではないでしょうか。
家が建った後も家具やアイテムを追加したり、プチリフォームもイメージが膨らみやすい点から我が家では今後でも活躍してくれそうです(^^)

にほんブログ村 住まいブログへ